Выполняем замеры для вашей новой кухни бесплатно
Проверяем углы, учитываем особенности стен, отмечаем выводы коммуникаций.
Обращаем ваше внимание
Вызов замерщика для шкафов-купе и другой мебели принимаются только в салонах после предварительной разработки дизайн-проекта.
Заполните форму и наш менеджер в течение 1-2 дней свяжется с Вами для уточнения удобных даты и времени проведения замера.
-
1
Получаем заявку и согласуем удобное время
-
2
Производим замер вашего помещения
-
3
Вносим корректировки в дизайн-проект кухни
Бесплатный замер помещения производится в пределах Большого бетонного кольца (трасса А108).
Замер является собственностью компании «Стильные Кухни и Интерьеры» и на руки не выдается!
Зачем нужен замер?
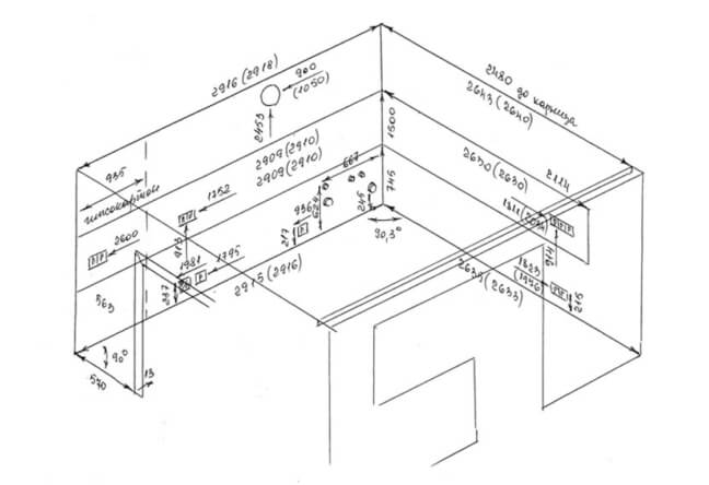
Замер позволит нашим специалистам оптимально разместить все элементы кухонного гарнитура с минимально возможными зазорами. Наши специалисты оснащены самым современным измерительным инструментом — лазерными рулетками и цифровыми угломерами.
Результат замера
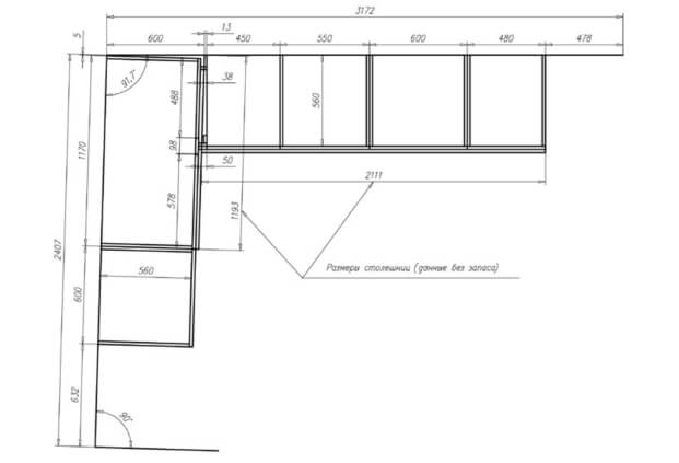
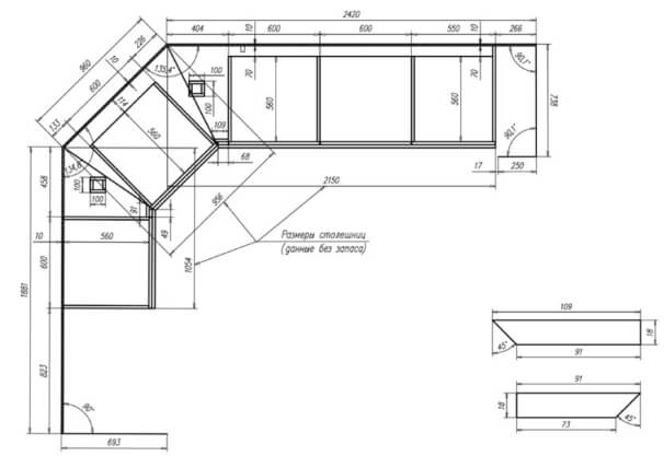
В результате замера мы получим эскиз помещения с необходимыми для проектирования кухни размерами. Увидим точки подключения бытовой техники (электричество, газ, вода, вентиляция), всевозможные выступы, подоконники, наличники и прочее.
Если углы в помещении больше 91 градуса и меньше 89, то дизайнеры отправляют эскиз на доработку в конструкторский отдел. Опытные конструкторы чертят мебель с учетом всех особенностей помещения, что позволяет избежать проблем при монтаже и проектировании.



Как заказать замер
Для того чтобы заказать замер помещения, необходимо заполнить форму заявки. Это занимает несколько минут. Получив заявку, мы связываемся с Вами и уточняем время и место проведения замера.
Благодаря отлаженной системе приема заявок, клиентам фирмы «Стильные кухни» не приходится «висеть» на телефоне, дозваниваясь до специалистов. Оставьте заявку на замер и в течение 1-2 дней наш специалист свяжется с Вами.
Сроки проведения замера
Обычно замер не занимает больше 20-30 минут. Для того, чтобы работа специалиста прошла быстрее, а измерения были точными, необходимо:
- подготовить помещение к замеру (убрать мебель, строительные материалы, коробки и т.д.);
- обеспечить замерщику доступ к любому месту в помещении.
Если Клиент вызывает замерщика в разгар ремонта, когда нет окончательных размеров помещения и ещё не проведены коммуникации, то размеры будут приблизительными и может потребоваться дополнительный выезд замерщика. В противном случае, могут появиться дополнительные зазоры между мебелью и стенами, в худшем случае мебель может не поместиться в помещение. Повторный замер бесплатный.
Мы рекомендуем вызывать замерщика только после завершения ремонта!
Дата проведения измерительных работ зависит от загруженности замерщика, точности указанной информации и Вашего пожелания. Обычно, с момента заполнения заявки до выезда замерщика проходит не более 3-4-х дней.
Мы специально установили такой срок, чтобы заказчик смог подготовиться к приезду специалиста — то есть обеспечить ему доступ ко всем важным для работы элементам помещения.
Условия проведения замеров
Услуга замера помещения является бесплатной. Измеряются параметры помещения, которые доступны для замерщика и которые имеют прямое отношение к кухонному гарнитуру и его элементам. Выезд осуществляется по предварительному согласованию с заказчиком. Результаты замеров отправляются в салон, который Вы укажете в заявке. Замер является собственностью компании «Стильные кухни» и на руки не выдается.
Бесплатный замер помещения доступен для клиентов в пределах Большого бетонного кольца, трасса А108 (при заказе от 50000 рублей).
Замерщик измеряет размеры помещения и элементов помещения, влияющих на конструкцию и расположение мебели. Замеры бытовой техники, антресольных ниш и т.п. производится только, если данные элементы имеют отношение к кухонному гарнитуру.
Консультации по дизайну, расположению встроенной техники, расположению электропроводки можно получить у дизайнера-консультанта в салоне. При неготовности помещения к замеру, производятся только измерения видимых элементов помещения и только в доступных местах.